栏目导航
   电动润滑泵
   手(脚)动润滑泵
   加油泵
   双线分配器
   单线分配器
   换向阀、操纵阀及其附件
   稀油润滑装置及稀油站
   稀油润滑元件
   管件部分
   油气润滑元件
 
XHZ型稀油润滑装置 (0.5MPa)
 
<< 下一页   
一、使用条件
本产品适用于冶金、重型、矿山等机械设备单配稀油循环润滑系统中,其工作介质粘度等级为N22-N460(相当于ISO VG22-460)的工业润滑油,冷却装置采用列管式油冷却器。
稀油润滑装置的公称供油压力为0.63MPa;过滤精度低粘度时为0.08mm;高粘度时为0.12mm;冷却水温度≤30℃;冷却水压力<0.4MPa;冷却器的进油温度为50℃时,润滑油的温降≥8℃,蒸汽压力为0.2-0.4MPa;泵口压力应大于0.63MPa。
XHZ-6.3~XHZ-125的小型稀油润滑装置为整体出厂;XHZ-160~XHZ-500的中型稀油润滑装置为分部件包装出厂;XHZ-630~2000及XHZ-630A~2000A(带压力罐加“A”)的大型稀油润滑装置为散件成套供货,现场焊接组装。
 
二、工作原理
本稀油润滑装置的工作原理如下:
油液由油泵排出经单向阀、截止阀、双筒网式过滤器及油冷却器后被直接送往润滑点,然后沿着系统的回油总管经回油过滤流回油箱。泵的公称压力为0.63MPa(即泵的最大出口压力),稀油润滑装置的供油压力为0.5MPa(即出油口压力)。设有压力罐的稀油润滑装置,其气源压力为0.5~0.6MPa。
正常操作时,一台齿轮泵工作,一台备用,通过转换开关来控制使之交替使用,通过按钮开关启动和停止。泵的输出端配有安全阀,用以避免油泵过截,此阀设定的开启压力为0.63MPa。系统的压力由压力开关控制,当系统压力达到正常调定值时,主机方可启动,当系统压力低于某一调定值时,备用泵自动启动,直到压力恢复正常为止。如系统压力继续降低,低于最低调定值时,发出低压事故报警信号,责令主机停车排除故障。
 
三、结构特点
1、在双筒过滤器上装有差压讯号器,当过滤器进出口压差超过0.10~0.15MPa 时,差压讯号器发出报警信号,用来通知切换工作滤网筒,以便清洗或更换滤网(此装置设计在冷却器装置之前;油粘度较高者更适合)。
2、在冷却器的进水口装有一个直读式温度计和电磁水阀,用来观察进水温度和控制冷却水的通或断。在系统的出油口处,装有一个电接点、温度计和温度控制器,用于控制工作油温;当出口油温高于某一调定的温度时,电磁水阀自动开启,冷却器投入工作,直到油温恢复正常为止。如冷却器已投入工作,系统的油温继续上升,达到最高温度时,温度控制器发出油温过热报警信号。当冷却器需要更换或维修时,可关闭冷却器的进出口阀门,打开旁路阀门,油液即不经冷却器直接送往润滑点。
3、在油箱上装有二个电接点温度计和二个液位开关,当油箱油温低于某一调定温度时,电加热器通电或蒸汽阀门开启,对油液进行加热,直到达到正常操作油温为止。当油箱中油液的温度低于最低调定温度时,油泵不能启动,需对油箱中油液加热。当油箱的液位达到上限或下限时,液位开关发出报警信号。
4、型号后带“A”者为有压力罐的装置,可满足发生意外事故或突然停电时,储存在压力罐中的油液可作临时压力油源向系统短时供油,但需注意压力罐上的一般单向阀应水平安装,不得向下安装(对较小的旋启式单向阀允许向上安装),附图中应作相应改变。
5、配有电控柜和仪表盘,观察运行参数方便,可实现自动控制和事故报警。
 
四、技术参数
型 号

公称
流量L/min

油箱
容积
m3
电动机 过滤
面积
m2
换热
面积
m2
冷却水
管通径
mm
冷却水
耗量
m3/h
电加热
器功率
kW
蒸汽管
通径
mm
蒸汽
耗量
kg/h
压力罐
容量
m3
出油口
通径
mm
回油口
通径
mm
重量
(约)
kg
极数
p
功率
kW
XHZ-6.3 6.3 0.25 6 0.75 0.05 1.3 25 0.6 3 15 40 320
XHZ-10 10
XHZ-16 16 0.5 6 1.1 0.13 3 25 1.5 6 25 50 980
XHZ-25 25
XHZ-40 40 1.25 6 2.2 0.20 6 32 3.8 12 32 65 1520

XHZ-63

63
XHZ-100 100 2.5 6 5.5 0.40 11 32 7.5 18 40 80 2850
XHZ-125 125
XHZ-160 160 5 4, 6 7.5 0.52 20 65 20 25 40 65 125 3950
XHZ-200 200
XHZ-225 225 10 4, 6 11 0.83 35 100 30 25 65 80 150 5660
XHZ-315 315
XHZ-400 400 16 4, 6 15 1.31 50 100 45 32 90 100 200 7290
XHZ-500 500
XHZ-630 630 20 6 18.5 1.31 60 100 55 32 120 2 100 250 8169
XHZ-630A 10160
XHZ-800 800 25 6 22 2.2 80 125 70 40 140 2.5 125 250 11550
XHZ-800A 13780
XHZ-1000 1000 31.5 6 30 2.2 100 125 90 50 180 3.15 125 300 13315
XHZ-100A 15500
XHZ-1250 1250 40 6 37 3.3 120 150 110 50 200 4 150 300 15350
XHZ-1250A 17960
XHZ-1600 1600 50 6 45 3.3 160 150 145 65 260 5 150 350 20010
XHZ-1600A 23020
XHZ-2000 2000 63 8 55 6 200 200 180 65 310 6.3 200 400 25875
XHZ-2000A 30300
注:1、A 为带压力罐的稀油润滑装置,呈正方形布置。
  2、斜齿轮油泵为4 极电机;人字齿轮油泵为6 极电机;极数也根据介质粘度确定,粘度高时宜选低速。
  3、如冷却水质采用江河水,需经过滤沉淀,水温不应超过32℃。
 
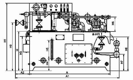
五、结构尺寸
 
 
<< 下一页