|
|
|
| |
R1904型电气控制箱(20MPa) |
| 一、用途 |
R1904型电控箱,用于自动控制一套由U-※※AE型终端式电动润滑泵与补脂泵组成的干油润滑系统,即在DEA-2E 型电控箱的基础上,增加了补脂泵自动控制部分。能对系统中的供油点实现自动供油,供油完成后,自动停止。油箱中液位低于一定限度时,补脂泵自动启动,注满油后,自动停止。
控制箱能发出“供油时间延长”、“油箱液位低”、“超负载运转”等故障信号。箱内设有一组外部接点,可向主机或主控室发送系统运转状况(停止、运转、故障)信号。
|
|
|
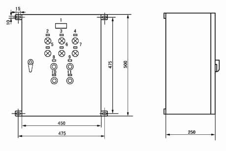
| 二、外形尺寸 |
|
| 三、标牌符号及文字 |
序号 |
符号 |
标牌文字 |
序号 |
符号 |
标牌文字 |
1 |
HL1 |
电源 |
6 |
HL4 |
油箱液位低 |
2 |
HL2 |
干油站工作 |
7 |
SB1 |
任意运转 |
3 |
HL3 |
加油泵工作 |
8 |
SB2 |
故障复位 |
4 |
HL4 |
供油时间延长 |
9 |
SB3 |
加油泵启动 |
5 |
HL5 |
超负载运转 |
10 |
SB4 |
加油泵停止 |
|
| 四、R1904型电气控制箱接线端子图 |
|
|
|
| |
|
|