| 一、使用条件 |
本产品适用于冶金、矿山、建材、能源、交通等行业中机械设备的稀油润滑,工作介质为粘度等级N22~N460(相当于IS0 VG22~460)的工业润滑油。
整体式稀油站的特点为全部零部件均布置在油箱上,性能参数基本上和XYZ-G型相同,但将流量大于125L/min的五种规格稀油站亦制成整体式,因而这些较大的油站仍可实现整体吊装,无地脚螺栓,使安装特别方便;特别适合于稀油占地面积受到限制的场合;但稀油站上面和四周需留足够的维修高度和面积;由于油泵在油箱顶上,因此选用的油泵应有足够的吸入高度,特别当润滑油粘度高,油温低时更要引起重视。
整体式稀油站的供油压力≤0.4MPa,过滤精度0.08~0.12mm(低粘度时允许采用小值),冷却水温度≤30℃,压力为0.2~0.4MPa,冷却器进油温度为50℃,通过冷却器后温降≥8℃;采用电加热器提高油温。 |
| |
| 二、工作原理 |
| 与XYZ-G 型≤125L/min的稀油站相同,亦采用电加热器提高油温。 |
| |
| 三、结构特点 |
| 亦与XYZ-G型≤125L/min的稀油站相同,但采用磁网一体化进行回油过滤后,均取消了外加的磁过滤器;仪表盘(板)亦与XYZ-6G~125G相同。 |
| |
| 四、技术参数 |
型号 |
公称流量
L/min |
供油压力
MPa |
供油温度
℃ |
油箱容积
m3 |
加热功率
Kw |
冷却面积
m2 |
冷水耗量
m3/h |
XYZ-250GZ |
250 |
≤0.4 |
40±3 |
3 |
24 |
12 |
22.5 |
XYZ-290GZ |
290 |
3.2 |
16 |
26 |
XYZ-315GZ |
315 |
3.5 |
20 |
28 |
XYZ-350GZ |
350 |
4.2 |
24 |
21.6 |
XYZ-400GZ |
400 |
4.5 |
24 |
36 |
|
型号 |
过滤面积
m2 |
过滤精度
mm |
电机功率
Kw |
|
回油口DN1
mm |
总图代号 |
XYZ-250GZ |
0.84 |
0.08 |
7.5 |
65 |
125 |
NR X 2.01.1.00 |
XYZ-290GZ |
11 |
150 |
NR X 2.01.2.00 |
XYZ-315GZ |
11 |
80 |
NR X 2.01.3.00 |
XYZ-350GZ |
1.31 |
0.12 |
11 |
NR X 2.01.4.00 |
XYZ-400GZ |
11 |
NR X 2.01.5.00 |
|
| |
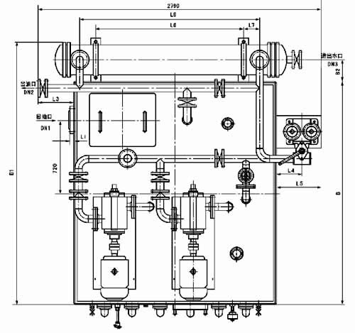
| 五、外形尺寸 |
|
|
| XYZ-GZ 型稀油站外形尺寸 |
型号 |
DN1 |
DN2 |
DN3 |
L |
B |
H |
L1 |
L2 |
L3 |
L4 |
L5 |
XYZ-250GZ |
125 |
65 |
65 |
1900 |
2100 |
1020 |
24 |
272 |
450 |
220 |
440 |
XYZ-290GZ |
150 |
65 |
65 |
1900 |
2200 |
1020 |
24 |
292 |
450 |
220 |
440 |
XYZ-315GZ |
150 |
80 |
65 |
2000 |
2200 |
1120 |
24 |
292 |
350 |
220 |
440 |
XYZ-350GZ |
150 |
80 |
80 |
2100 |
2200 |
1120 |
24 |
397 |
250 |
220 |
440 |
XYZ-400GZ |
150 |
80 |
80 |
2100 |
2200 |
1120 |
24 |
397 |
250 |
220 |
440 |
|
型号 |
L6 |
L7 |
L8 |
B1 |
B2 |
H1 |
H2 |
H3 |
H4 |
H5 |
H6 |
XYZ-250GZ |
660 |
152 |
960 |
2535 |
218 |
1260 |
1365 |
350 |
230 |
840 |
105 |
XYZ-290GZ |
1065 |
152 |
1365 |
2635 |
218 |
1260 |
1365 |
350 |
230 |
840 |
105 |
XYZ-315GZ |
1475 |
152 |
1775 |
2635 |
218 |
1360 |
1465 |
450 |
230 |
940 |
105 |
XYZ-350GZ |
1835 |
147 |
2175 |
2735 |
218 |
1260 |
1465 |
450 |
230 |
940 |
105 |
XYZ-400GZ |
1835 |
147 |
2175 |
2735 |
218 |
1360 |
1465 |
450 |
230 |
940 |
105 |
|
| |
| 六、原理图 |
|
图1-3-2 XYZ-GZ 型稀油站原理图 |
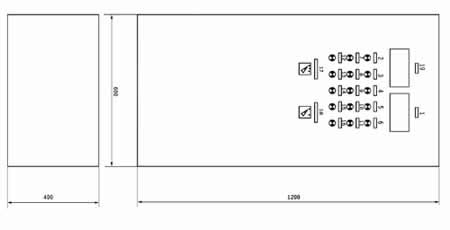
| 七、仪表盘 |
| 和XYZ-6G~125G型稀油站的仪表盘(板)相同 |
序 号 |
标牌文字 |
1 |
出口油温 |
2 |
1#泵工作 |
3 |
2#泵工作 |
4 |
加热器工作 |
5 |
主机运行 |
6 |
可驱动主机 |
7 |
压力过低 |
8 |
供油口温高 |
9 |
油 位 低 |
10 |
压差过高 |
11 |
主机油温高 |
12 |
低压泵起动 |
13 |
低压泵停止 |
14 |
加热器起停 |
15 |
试 响 |
16 |
消除警报 |
17 |
1#为主*单独*2#为主 |
18 |
中控/机旁 |
19 |
油箱油温 |
|
图1-3-3 XYZ-GZ型稀油站电控外形图 |
| |
| |
| |
|
| |
|