栏目导航
   电动润滑泵
   手(脚)动润滑泵
   加油泵
   双线分配器
   单线分配器
   换向阀、操纵阀及其附件
   稀油润滑装置及稀油站
   稀油润滑元件
   管件部分
   油气润滑元件
 
XYHZ型稀油润滑装置(0.5MPa)
 

四、电控箱外形尺寸

          图5 XYHZ6.3~XYHZ200装置电控箱         图6 XYHZ250~XYHZ800装置电控箱
 

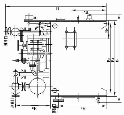
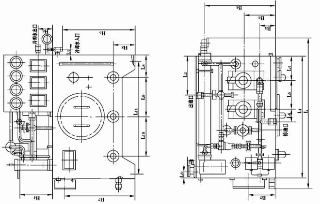
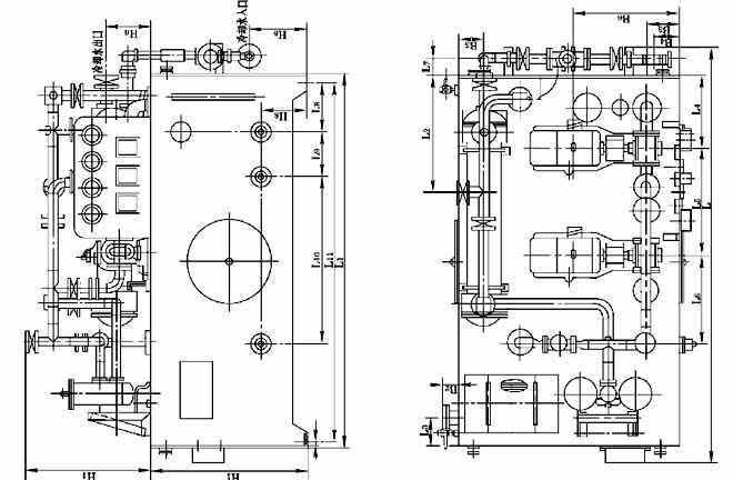
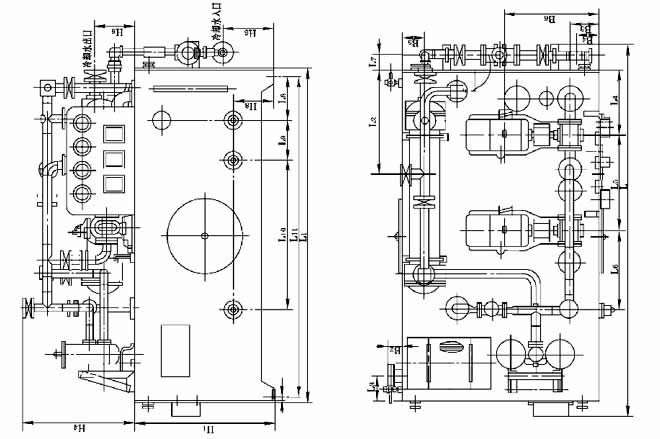
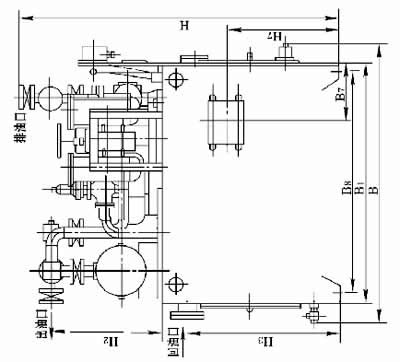
五、装置外形尺寸

  1.XYHZ6.3~XYHZ25的装置形式与尺寸见图7和表3;
  2.XYHZ40~XYHZ125的装置形式与尺寸见图8和表4;
  3.XYHZ160~XYHZ800的装置形式与尺寸见图9和表5;
  4.图7、8、9中进出口法兰尺寸见图10和表6、7;
图7 XYHZ6.3~XYHZ25装置
 
图8 XYHZ40~XYHZ125装置
 
图9 XYHZ160~XYHZ800装置